![]() |
| 대구도시철도 3호선 서문시장역 확장 공사가 속도를 낼 전망이다. 서문시장역 모습. |
대구 서문시장 상인과 이용객들의 숙원사업인 '도시철도 3호선 서문시장역 확장 공사'의 최종 설계안이 나왔다. 그간 진출입로 방향 등을 놓고 다른 목소리를 냈던 상인들도 최종안에 대해선 긍정적인 반응을 보인 것으로 나타났다. 지지부진하던 서문시장역 확장 공사가 속도를 낼 것으로 보인다.
9일 대구교통공사에 확인 결과, 당초 서문시장역 확장 공사(안)에서 현장 요구사항을 보완한 변경안이 10일 대구시에 보고된다. 이 안에 대해 서문시장 대다수 상가가 지지하고 있어서 변경된 설계안대로 공사가 진행될 가능성이 높다.
앞서 공사는 지난해 10월 서문시장역 확장 공사 실시설계용역을 완료하고, 계획(안)을 공개했다. 계획안에는 총 사업비 137억원을 들여 서문시장역 승객 대합실을 189㎡→336㎡로 확장하고, 외부출입구 4개소에 양방향 에스컬레이터를 설치하는 안 등이 담겼다. 역사에서 동산육교와 직접 연결되는 통로도 신설, 방문객 보행로를 다양화할 계획이었다.
하지만, 승강장 종점부로부터 동산육교를 잇는 비상통로(25m가량)가 문제가 됐다. 해당 통로의 존재가 동산육교와 연결된 일부 상가에 대한 특혜 논란으로 이어지면서다. 지난해 10월말 서문시장 주요 상가 소속 상인 1천여 명은 역사와 동산육교 연결을 반대한다는 내용의 집단 민원을 제기하면서 공사는 다시 난관에 봉착했다.
![]() |
| 대구도시철도 3호선 서문시장역 기존 확장안 평면도. 동산육교와 직접 연결되는 비상통로가 설치돼 있다. <대구교통공사 제공> |
![]() |
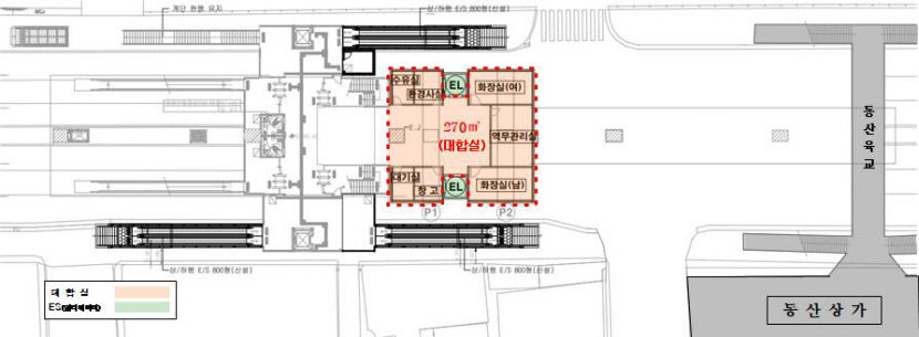
| 대구도시철도 3호선 확장 변경안 평면도. 동산육교와 연결통로를 없애고, 대합실 공간 확장 및 엘리베이터 등을 조성할 계획이다. <대구교통공사 제공> |
교통공사는 상인들 의견을 수렴하고, 현장여건을 정밀 재분석해 승객의 편리성과 안전성을 강화한 변경(안)을 마련했다. 먼저 갈등의 단초를 제공했던 역사와 동산육교 간 연결통로는 변경안에서 삭제했다. 동산육교와 연결부 공간이 사라지면서 대합실 규모는 기존 확장(안) 336㎡→300㎡로 축소됐다. 하지만 대기 공간 및 수유실 등 승객들이 실제 이용하는 공간은 오히려 268㎡→270㎡로 늘었다는 게 공사 측 설명이다.
외부로 향하는 상·하행 에스컬레이터도 기존 4개→3개소로 줄어든 대신, 24인승 엘리베이터 2개소가 신설됐다. 승객 이동량이 적을 것으로 예상되는 1번 출입구 계단을 비상대피로로 활용, 승객 안전에도 만전을 기했다고 덧붙였다. 공사비 25억원(총 사업비 40억원) 절감효과도 거뒀다.
변경안에 대해선 상인 대다수가 만족하는 분위기다. 공사는 지난달 설계 변경안에 대해 서문시장 7개 상가 대표 회장단에 설명했다. 지난달 13일과 20일 두 차례에 걸쳐 상인들로부터 변경안에 대해 만족하며, 일체 민원을 제기하지 않겠다는 약속을 받아냈다. 특혜 논란이 불거진 특정 상가 측과도 원안 진행 불가에 대해선 아쉽지만, 공사 지연으로 시민이 불편을 겪으면 안된다는 것에 대한 공감대를 이끌어냈다.
박종호 서문시장연합회장은 "확장안 공개 후 일부 상가에 대한 특혜 논란으로 잡음이 있었던 건 사실"이라며 "불필요한 갈등으로 사업이 지연되면 그 피해는 상인뿐만 아니라, 시민 모두에게 돌아갈 것이라는 판단에 상인들의 협조를 구했다"고 했다.
설계안 합의를 이뤄내면서 서문시장역 확장 공사는 한층 속도를 낼 전망이다. 현재 3·4번 출입구 상·하행 에스컬레이터 설치공사에 착수한 상태로, 4월쯤 완료된다. 3·4번 에스컬레이터가 운행되면 2번 출입구 공사로 이어진다. 올 하반기부터 대합실 및 승강장 확장 공사에 들어갈 예정이다. 내년 1월 준공이 목표다.
이광모 대구교통공사 기술본부장은 "불필요한 갈등으로 서문시장을 이용하는 승객을 위한 사업이 취소되는 사태를 막고자 합리적인 중재안을 마련했다"며 "공사 기간 상인들의 불편이 없도록 이해를 구하면서 공사를 신속하게 추진하겠다"고 했다.
글·사진=이승엽기자 sylee@yeongnam.com
이승엽
영남일보(www.yeongnam.com), 무단전재 및 수집, 재배포금지



![[영상] 월정교 위 수놓은 한복의 향연··· 신라 왕복부터 AI 한복까지](https://www.yeongnam.com/mnt/file_m/202510/news-m.v1.20251031.6f8bf5a4fea9457483eb7a759d3496d2_P1.jpg)





